Description de l'offre
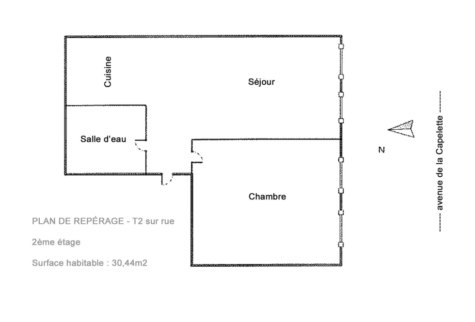
SPECIAL INVESTISSEUR – 189 AV DE LA CAPELETTE - A+ Immobilier-Patrimoine vous propose en exclusivité au 189 avenue de la Capelette, un T2 de 30m2. Le bien est vendu avec un locataire en place. A proximité immédiate des commerces et des transports en commun, cet appartement lumineux se trouve au 2ème étage/4 et offre une vue directe sur l’avenue de la Capelette. Cuisine ouverte sur le séjour, chambre indépendante et salle d’eau avec toilettes. Précisions et éléments chiffrés ...Bail de 3 ans en cours avec prise d’effet le 1er décembre 2024, Loyer mensuel hors charges de 500 €, Rentabilité hors charges de 8 %. Quartier en devenir à court terme avec un permis déposé à 500m du bien … https://madeinmarseille.net/176499-capelette-nouveau-quartier-incity-patinoire/ . Copropriété de 10 lots, en cours de constitution avec prévision des charges en cours d’établissement pour le Lot 6 ici concerné. Honoraires à la charge du vendeur. "les informations sur les risques auxquels ce bien est exposé sont disponibles sur www.géorisques.gouv.fr". Contact pour ce bien : Michel CORVASCE 06 84 95 56 16 - Agent Commercial RSAC Marseille 435210216.
Les informations sur les risques auxquels ce bien est exposé sont disponibles sur le site Géorisques
